図面作成の有限会社MiTo設計

図面のことなら有限会社MiTo設計

06-6725-6701
二級建築士 登録番号 第52773号
〒577-0803 大阪府東大阪市下小阪5丁目5-13-604

有限会社 MiTo設計

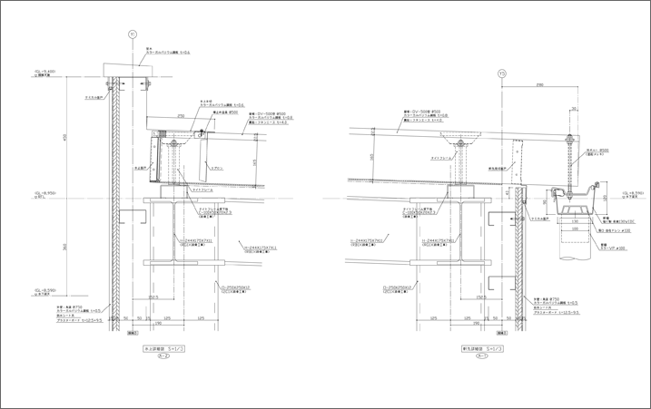
施工図面

施工図面の例

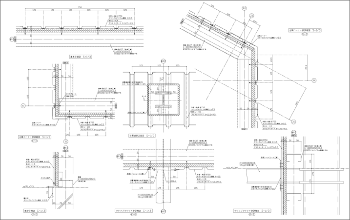
矢視図
矢視図

矢視図
矢視図

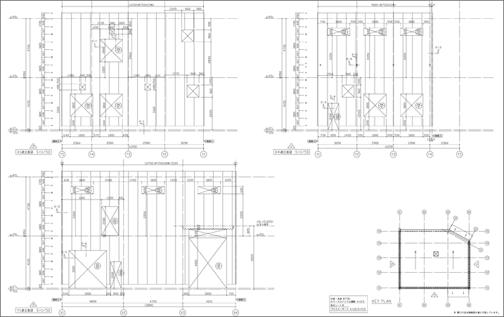
外壁の図面
外壁図面

外壁の図面
外壁の図面

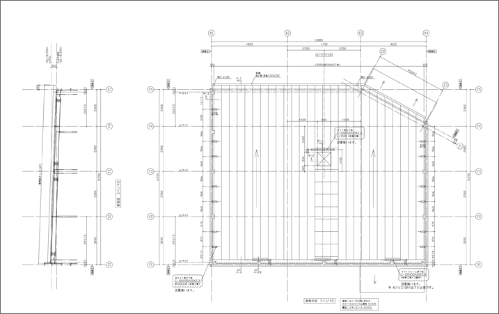
屋根の図面
屋根の図面

屋根の図面
屋根

OUR SERVICE

守秘義務の徹底

企業様の大切な技術・情報を扱う以上、守秘義務は最重要項目として契約書にて交わし、業務遂行をいたします。

また、弊社は外部ブレーンとして、量に応じてチームで業務を行い、ご要望・対応についてスムーズな業務進行をお約束いたします。

事前にお打ち合わせ・お見積

納品形態・データ形式などについても、お気軽にご相談ください。

臨機応変に対応させていただきます。

ページのトップへ戻る